Koszty budowy myjni samochodowej w Polsce kompleksowy przewodnik po inwestycji
- Budowa 4-stanowiskowej myjni bezdotykowej to wydatek rzędu 600 000 - 1 000 000 zł netto, nie wliczając działki i prac budowlanych.
- Całkowity koszt inwestycji w 2-stanowiskową myjnię bezdotykową z działką i pracami budowlanymi często przekracza 1 200 000 zł brutto.
- Myjnie automatyczne (portalowe) kosztują od 250 000 zł do 600 000 zł netto za samo urządzenie, wymagając dodatkowo budowy hali.
- Kluczowe składniki kosztów początkowych to działka (150 000 - 1 000 000 zł), projekt i pozwolenia (20 000 - 50 000 zł) oraz prace budowlane i przyłącza (minimum 200 000 - 400 000 zł).
- Miesięczne koszty operacyjne (media, chemia, serwis) dla myjni 4-stanowiskowej mogą wynieść od 12 000 do 23 000 zł.
- Zwrot z inwestycji w dobrze zlokalizowaną myjnię bezdotykową szacowany jest na 4-7 lat.
Dlaczego precyzyjna kalkulacja to fundament Twojego sukcesu?
Z mojego doświadczenia wynika, że precyzyjna kalkulacja kosztów jest absolutnie kluczowa dla sukcesu każdej inwestycji, a w przypadku myjni samochodowej ma to szczególne znaczenie. Pozwala ona nie tylko na uniknięcie nieprzewidzianych wydatków, które mogą zachwiać płynnością finansową projektu, ale także na minimalizację ryzyka biznesowego. Dokładny kosztorys jest również niezbędnym elementem do stworzenia wiarygodnego biznesplanu, który z kolei stanowi fundament do pozyskania zewnętrznego finansowania, czy to w formie kredytu, leasingu, czy dotacji.
Co składa się na całkowity koszt budowy? Rozbijamy inwestycję na czynniki pierwsze.
Całkowity koszt budowy myjni samochodowej to suma wielu składowych, z których każda wymaga szczegółowej analizy. Aby ułatwić zrozumienie struktury wydatków, rozbiłem inwestycję na kluczowe elementy:
- Działka: To jeden z pierwszych i często największych wydatków. Jej cena zależy od lokalizacji, wielkości i przeznaczenia.
- Projekt i pozwolenia: Obejmują koszty związane z opracowaniem projektu budowlanego, technologicznego oraz uzyskaniem wszelkich niezbędnych pozwoleń i uzgodnień.
- Prace budowlane i przyłącza: To kompleksowe działania na placu budowy, takie jak przygotowanie terenu, wykonanie fundamentów, płyty betonowej, wiaty oraz doprowadzenie mediów (woda, kanalizacja, prąd, gaz).
- Technologia myjni: Sercem każdej myjni jest jej technologia. Koszt zależy od wybranego typu myjni (bezdotykowa, automatyczna, ręczna) oraz od producenta i oferowanych programów.
- Dodatkowe wyposażenie: Elementy takie jak odkurzacze, rozmieniarki banknotów, trzepaczki dywaników czy systemy płatności kartą, które podnoszą komfort klienta i generują dodatkowe przychody.

Wybór technologii myjni: Jakie są koszty różnych typów?
Myjnia bezdotykowa: Analiza kosztów dla najpopularniejszego rozwiązania w Polsce.
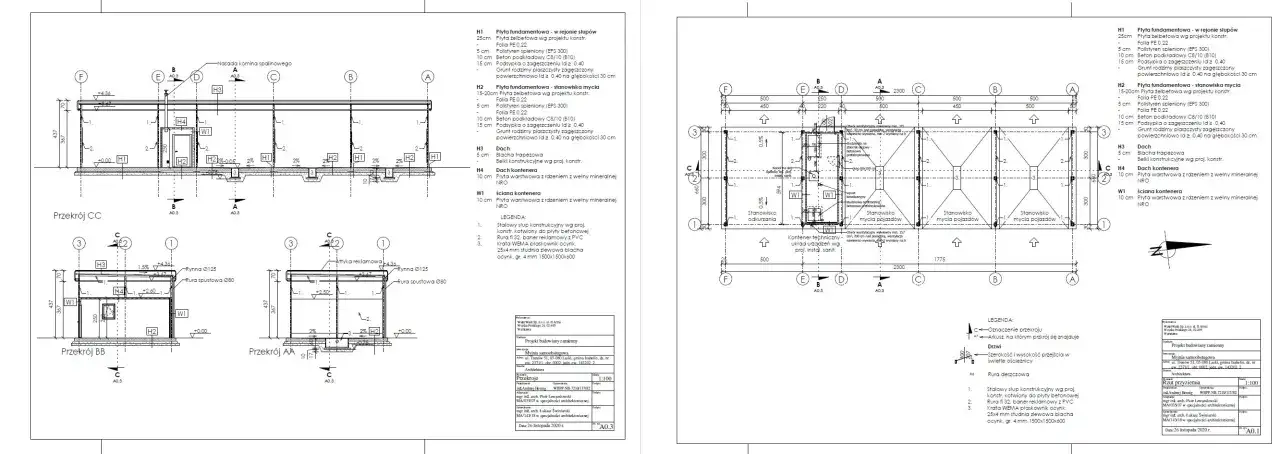
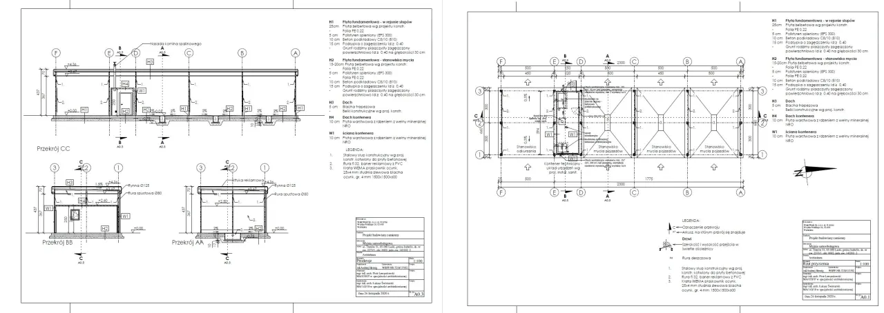
Myjnie bezdotykowe cieszą się w Polsce największą popularnością, co wynika z ich efektywności i stosunkowo niskich kosztów operacyjnych. Koszt budowy jednego stanowiska myjni bezdotykowej, w zależności od producenta i konfiguracji (kontenerowej lub modułowej), waha się od 150 000 zł do nawet 250 000 zł netto. Dla popularnej myjni 4-stanowiskowej, która zapewnia optymalną przepustowość, należy liczyć się z wydatkiem rzędu 600 000 - 1 000 000 zł netto. Należy jednak pamiętać, że do tych kwot obligatoryjnie trzeba doliczyć koszty zakupu działki, kompleksowych prac budowlanych oraz wykonania wszystkich niezbędnych przyłączy. W praktyce, pełny koszt inwestycji w myjnię bezdotykową 2-stanowiskową, wyposażoną w odkurzacz i rozmieniarkę, uwzględniający działkę i prace budowlane, często przekracza 1 200 000 zł brutto.Myjnia automatyczna (portalowa): Kiedy wyższy koszt początkowy się opłaca?
Myjnie automatyczne, zwłaszcza portalowe, stanowią inną kategorię inwestycji. Koszt zakupu samego urządzenia myjni portalowej to wydatek od 250 000 zł do 600 000 zł netto. W przypadku myjni tunelowych, które charakteryzują się znacznie większą przepustowością, inwestycja może sięgnąć nawet 1 500 000 - 3 000 000 zł. Kluczowe jest to, że do tych kwot należy bezwzględnie doliczyć koszty budowy dedykowanej hali, instalacji zaawansowanych systemów recyklingu wody oraz kompleksowego przygotowania terenu, co znacząco podnosi całościową inwestycję. Wyższy koszt początkowy myjni automatycznej może się opłacić w lokalizacjach o bardzo dużej przepustowości, gdzie szybkość obsługi klienta jest priorytetem, na przykład przy dużych centrach handlowych czy w pobliżu autostrad.
Myjnia ręczna i parowa: Czy najtańsza opcja na start jest dla Ciebie?
Myjnia ręczna to zdecydowanie najtańsza opcja na start w branży. Adaptacja istniejącego garażu lub budynku i zakup podstawowego sprzętu, takiego jak myjka ciśnieniowa, odkurzacz oraz zestaw kosmetyków samochodowych, może zamknąć się w kwocie 50 000 - 100 000 zł. Jeśli jednak planujemy budowę nowego, dedykowanego obiektu z jednym lub dwoma stanowiskami, koszt ten wzrośnie do od 200 000 zł wzwyż. Taka opcja może być odpowiednia dla przedsiębiorców z ograniczonym budżetem początkowym, którzy chcą przetestować rynek lub oferować usługi premium, wymagające indywidualnego podejścia do każdego pojazdu, np. myjnie detailingowe czy mobilne myjnie parowe.
Tabela porównawcza: Zestawienie kosztów budowy i potencjału różnych typów myjni.
| Typ myjni | Koszt technologii (netto) | Szacunkowy całkowity koszt inwestycji (brutto) | Główne zalety |
|---|---|---|---|
| Bezdotykowa | 150 000 - 1 000 000 zł | 1 200 000 - 1 800 000 zł (dla 2-4 stanowisk) | Duża popularność, niższe koszty operacyjne, samoobsługa, szybki zwrot |
| Automatyczna (portalowa) | 250 000 - 600 000 zł | 800 000 - 1 500 000 zł (z halą i infrastrukturą) | Szybkość obsługi, wygoda dla klienta, wysoka przepustowość |
| Ręczna | 50 000 - 200 000 zł | 200 000 - 500 000 zł (z adaptacją/budową) | Niski koszt początkowy, możliwość usług premium, elastyczność |

Działka, projekt i prace budowlane: Niewidoczne, ale kluczowe koszty inwestycji.
Ile kosztuje i jak wybrać idealną działkę pod myjnię samochodową?
Wybór i zakup odpowiedniej działki to jeden z najważniejszych etapów inwestycji, a jednocześnie generujący znaczne koszty. Ceny działek pod myjnię wahają się od 150 000 zł w mniejszych miejscowościach do ponad 1 000 000 zł w dużych aglomeracjach, w zależności od lokalizacji i wielkości. Dla myjni 4-stanowiskowej minimalna wymagana powierzchnia to około 1000-1500 m², aby zapewnić odpowiednią przestrzeń na stanowiska, wjazdy, wyjazdy i poczekalnie. Moim zdaniem, kluczowe czynniki wpływające na wybór idealnej lokalizacji działki to:
- Bliskość supermarketów i centrów handlowych: Generują duży ruch samochodowy.
- Sąsiedztwo stacji paliw: Klienci często łączą tankowanie z myciem samochodu.
- W pobliżu osiedli mieszkaniowych: Zapewnia stały strumień lokalnych klientów.
- Dostęp do dróg o dużym natężeniu ruchu: Gwarantuje wysoką widoczność i łatwy dojazd.
- Dostępność mediów: Bliskość przyłączy wodno-kanalizacyjnych, elektrycznych i gazowych znacząco obniża koszty.
Projekt budowlany i formalności: Jakie koszty i procedury Cię czekają?
Koszty związane z projektem budowlanym, technologicznym oraz uzyskaniem wszelkich pozwoleń na budowę to wydatek rzędu 20 000 - 50 000 zł. Jest to inwestycja w dokumentację, która jest fundamentem legalnej i bezpiecznej budowy. Procedury obejmują m.in. uzyskanie warunków zabudowy (jeśli brak MPZP), pozwolenia na budowę, uzgodnienia z gestorami mediów, a także decyzje środowiskowe. To proces czasochłonny, który wymaga cierpliwości i współpracy z doświadczonym architektem oraz projektantem technologii myjni.
Przygotowanie terenu i przyłącza mediów: Ile naprawdę kosztuje "stan zerowy"?
Przygotowanie terenu i wykonanie przyłączy mediów, czyli doprowadzenie działki do "stanu zerowego", to często niedoszacowywany element budżetu. Szacunkowy koszt tych prac to minimum 200 000 - 400 000 zł. W skład tych prac wchodzi wiele elementów, które są niewidoczne po zakończeniu budowy, ale absolutnie niezbędne do funkcjonowania myjni:
- Przygotowanie płyty betonowej, która jest podstawą całej konstrukcji myjni.
- Budowa wiaty, która chroni stanowiska mycia przed warunkami atmosferycznymi.
- Utwardzenie terenu wokół myjni, wjazdy i wyjazdy, zapewniające komfort klientom.
- Wykonanie przyłączy wodno-kanalizacyjnych, niezbędnych do dostarczania i odprowadzania wody.
- Doprowadzenie przyłącza gazowego (jeśli planujemy podgrzewanie wody gazem).
- Wykonanie przyłącza elektrycznego, z odpowiednią mocą do zasilania urządzeń myjni.
Technologia i wyposażenie: Jakie elementy wpływają na cenę myjni?
Ile kosztuje jedno stanowisko myjni bezdotykowej? Analiza ceny w zależności od producenta i opcji.
Jak już wspomniałem, koszt jednego stanowiska myjni bezdotykowej to przedział 150 000 - 250 000 zł netto. Ta rozbieżność wynika przede wszystkim z kilku czynników. Po pierwsze, różnice w cenach występują między producentami renomowane marki często oferują droższe, ale bardziej niezawodne i zaawansowane technologicznie rozwiązania. Po drugie, cena jest silnie uzależniona od wybranych programów mycia. Im więcej opcji (np. dodatkowe programy woskowania, nabłyszczania, mycia podwozia), tym wyższy koszt jednostkowy stanowiska. Warto zainwestować w sprawdzone rozwiązania, które zapewnią długą żywotność i niskie koszty serwisowania.
Programy mycia, które zarabiają: Aktywna piana, szczotka, wosk w co warto zainwestować?
Aby myjnia była atrakcyjna dla klientów i generowała solidne zyski, kluczowe jest zaoferowanie różnorodnych i skutecznych programów mycia. Z mojego doświadczenia wiem, że klienci cenią sobie możliwość wyboru, a niektóre opcje są prawdziwymi "generatorami" przychodów:
- Piana aktywna: Niezwykle popularna opcja, która skutecznie zmiękcza brud i ułatwia jego usunięcie. Klienci chętnie za nią dopłacają.
- Szczotka: Dostępna w niektórych myjniach bezdotykowych, pozwala na mechaniczne doczyszczenie uporczywych zabrudzeń.
- Wosk: Program woskowania na gorąco lub na zimno, który poprawia wygląd lakieru i zapewnia jego ochronę.
- Osmoza (woda demineralizowana): Pozwala na mycie bez smug i zacieków, co jest szczególnie cenione przez wymagających klientów.
Wyposażenie dodatkowe, które podnosi zyski: Odkurzacz, rozmieniarka, systemy płatności.
Warto pamiętać, że zyski z myjni nie pochodzą wyłącznie z samych programów mycia. Wyposażenie dodatkowe to często niedoceniany element, który znacząco podnosi atrakcyjność obiektu i generuje dodatkowe przychody. Koszt zakupu odkurzaczy to około 20 000 zł za sztukę, natomiast rozmieniarki banknotów to wydatek rzędu 15 000 zł. Oto inne elementy, które warto rozważyć:- Trzepaczki dywaników: Drobna, ale bardzo przydatna usługa, za którą klienci chętnie płacą.
- Systemy płatności kartą: W dzisiejszych czasach to standard. Umożliwiają płatność bezgotówkową, co zwiększa wygodę i dostępność.
- Dystrybutory płynu do spryskiwaczy: Kolejny drobny, ale dochodowy element, który uzupełnia ofertę.
- Czernienie opon: Usługa, która dodaje estetyki umytemu samochodowi i jest chętnie wybierana.
Koszty operacyjne myjni: Ile wynosi miesięczne utrzymanie?
Media i chemia: Jak oszacować bieżące wydatki na wodę, prąd i środki myjące?
Koszty operacyjne to bieżące wydatki, które trzeba regularnie ponosić, aby myjnia mogła funkcjonować. Dla myjni 4-stanowiskowej miesięczne koszty mediów (woda, prąd, gaz do podgrzewania wody) mogą wynosić od 8 000 do 15 000 zł. Koszty chemii samochodowej (środki do mycia, woski, preparaty) to kolejny znaczący wydatek, rzędu 3 000 - 6 000 zł miesięcznie. Należy podkreślić, że koszty te są dynamiczne i zależą bezpośrednio od liczby klientów oraz aktualnych cen dostawców. Im więcej klientów, tym wyższe zużycie, ale jednocześnie wyższe przychody.
Serwis, marketing i podatki: O jakich stałych kosztach nie możesz zapomnieć?
Oprócz mediów i chemii, istnieją inne stałe koszty operacyjne, o których nie można zapomnieć przy planowaniu budżetu. Szacunkowe miesięczne koszty serwisu i konserwacji urządzeń to około 1 000 - 2 000 zł. Regularny serwis jest kluczowy dla niezawodności myjni i minimalizacji przestojów. Ponadto, należy uwzględnić:
- Podatki i opłaty lokalne: Podatek od nieruchomości, opłaty za wywóz śmieci, itp.
- Koszty marketingu: Reklama lokalna, promocje, utrzymanie strony internetowej czy mediów społecznościowych.
- Ewentualny personel: Jeśli myjnia nie jest w pełni samoobsługowa lub wymaga nadzoru.
- Ubezpieczenie: Polisy chroniące przed różnymi ryzykami.
Kalkulacja rentowności: Jak oszacować próg rentowności i potencjalne zyski?
Kalkulacja rentowności to kluczowy element biznesplanu. Średni przychód z jednego stanowiska myjni bezdotykowej szacuje się na 5 000 - 10 000 zł miesięcznie. Oczywiście, te wartości mogą się różnić w zależności od lokalizacji, konkurencji i pory roku. Z moich obserwacji wynika, że zwrot z inwestycji (ROI) w przypadku dobrze zlokalizowanej myjni bezdotykowej szacowany jest na 4-7 lat. To bardzo atrakcyjny wynik w porównaniu do wielu innych branż. Należy jednak ponownie podkreślić, że kluczowe znaczenie dla rentowności ma lokalizacja to ona w dużej mierze decyduje o liczbie klientów i generowanych przychodach.
Finansowanie inwestycji: Jak pozyskać środki na budowę myjni?
Kredyt inwestycyjny, leasing czy dotacje? Przegląd dostępnych opcji.
Pozyskanie odpowiednich środków finansowych to często największe wyzwanie dla inwestorów. Na szczęście, istnieje kilka sprawdzonych opcji finansowania budowy myjni samochodowej:
- Kredyt inwestycyjny: To tradycyjna forma finansowania oferowana przez banki. Wymaga solidnego biznesplanu i często zabezpieczeń. Pozwala na sfinansowanie zarówno zakupu działki, jak i budowy oraz technologii.
- Leasing: Coraz popularniejsza opcja, zwłaszcza w przypadku finansowania samej technologii myjni. Leasing operacyjny lub finansowy pozwala na rozłożenie kosztów w czasie, często z korzyściami podatkowymi.
- Dotacje: Warto śledzić programy unijne lub krajowe, które oferują wsparcie dla małych i średnich przedsiębiorstw, zwłaszcza w zakresie innowacji, ekologii czy rozwoju regionalnego. Dotacje mogą znacząco obniżyć początkowy wkład własny.
Biznesplan jako klucz do uzyskania finansowania: Co musi zawierać?
Niezależnie od wybranej formy finansowania, kluczową rolę w procesie pozyskiwania środków odgrywa szczegółowy i profesjonalnie przygotowany biznesplan. To dokument, który przekonuje instytucje finansowe o rentowności i bezpieczeństwie Twojej inwestycji. Moim zdaniem, powinien on zawierać:
- Analizę kosztów: Precyzyjne zestawienie wszystkich wydatków początkowych i operacyjnych.
- Prognozy przychodów: Realistyczne szacunki potencjalnych zysków, oparte na analizie rynku i lokalizacji.
- Analizę rynku: Badanie konkurencji, grupy docelowej i potencjału lokalizacji.
- Kalkulację ROI (zwrotu z inwestycji): Wyraźne przedstawienie, kiedy inwestycja zacznie przynosić zyski.
- Analizę SWOT: Mocne i słabe strony projektu, szanse i zagrożenia.
- Plan marketingowy: Strategie pozyskiwania i utrzymywania klientów.
Planowanie budżetu i unikanie pułapek: Klucz do sukcesu.
Najczęstsze błędy, które generują niepotrzebne koszty.
W mojej praktyce widziałem wiele projektów, które napotkały trudności z powodu powtarzających się błędów. Uniknięcie ich to podstawa sukcesu:
- Zła lokalizacja: Wybór działki bez dogłębnej analizy ruchu, konkurencji i dostępności mediów to prosta droga do niskiej rentowności.
- Niedoszacowanie kosztów początkowych: Brak uwzględnienia wszystkich elementów (np. formalności, przyłączy, buforu na nieprzewidziane wydatki) prowadzi do problemów finansowych w trakcie budowy.
- Brak buforu finansowego: Zawsze należy mieć rezerwę na nieprzewidziane wydatki, które mogą pojawić się na każdym etapie inwestycji.
- Zaniedbanie kosztów operacyjnych: Skupienie się wyłącznie na kosztach początkowych i niedocenianie bieżących wydatków na media, chemię czy serwis.
- Brak szczegółowego biznesplanu: Inwestowanie bez solidnego planu to działanie po omacku, które utrudnia pozyskanie finansowania i zarządzanie projektem.
- Brak analizy konkurencji: Niezrozumienie oferty i cen konkurentów może prowadzić do błędnych decyzji cenowych i marketingowych.
Przeczytaj również: Myjnia samoobsługowa: Umyj auto jak PRO! Poradnik bez zacieków
Ostateczna checklista inwestora: Sprawdź, czy o wszystkim pomyślałeś.
Aby ułatwić Ci proces planowania i realizacji, przygotowałem kompleksową checklistę, która podsumowuje kluczowe aspekty, o których należy pamiętać:
- Dokładna analiza i wybór technologii myjni (bezdotykowa, automatyczna, ręczna) adekwatnej do lokalizacji i budżetu.
- Zabezpieczenie odpowiedniej działki z uwzględnieniem lokalizacji, powierzchni i dostępu do mediów.
- Opracowanie szczegółowego projektu budowlanego i technologicznego, wraz z uzyskaniem wszystkich pozwoleń.
- Precyzyjne budżetowanie prac budowlanych i wykonania przyłączy mediów (woda, kanalizacja, prąd, gaz).
- Zaplanowanie zakupu technologii myjni i dodatkowego wyposażenia (odkurzacze, rozmieniarki, systemy płatności).
- Szczegółowe oszacowanie miesięcznych kosztów operacyjnych (media, chemia, serwis, podatki, ewentualny personel).
- Zabezpieczenie odpowiedniego finansowania inwestycji (kredyt, leasing, dotacje).
- Przygotowanie kompleksowego biznesplanu, zawierającego analizę rynku, prognozy finansowe i kalkulację ROI.
- Przeprowadzenie dogłębnej analizy konkurencji w wybranej lokalizacji.
- Stworzenie planu marketingowego, który zapewni widoczność i przyciągnie klientów.
- Ustanowienie buforu finansowego na nieprzewidziane wydatki.